티스토리 뷰
서울 영등포구 브라이튼여의도 민간임대 모집공고, 공급, 임대료, 평면도, 위치등에 대해서 알아봅니다.
브라이튼여의도는 편의점 마트, 병원, 대학교, 공원, 카페 등 다양한 편의시설이 고루 갖춰진 지역에 위치하고 있습니다.
목차
브라이튼여의도 민간임대

상세정보
- 주소 서울 영등포구 여의도동 31
- 주택명 브라이튼여의도
- 지하철역 5/9호선 여의도역, 5호선 여의나루역
- 규모 454
위치정보

공급정보

임대보증금 및 월 임대료는 입주자 모집공고일 기준이며, 보증금 최대 전환 시 변동될 수 있습니다.
단지 배치도


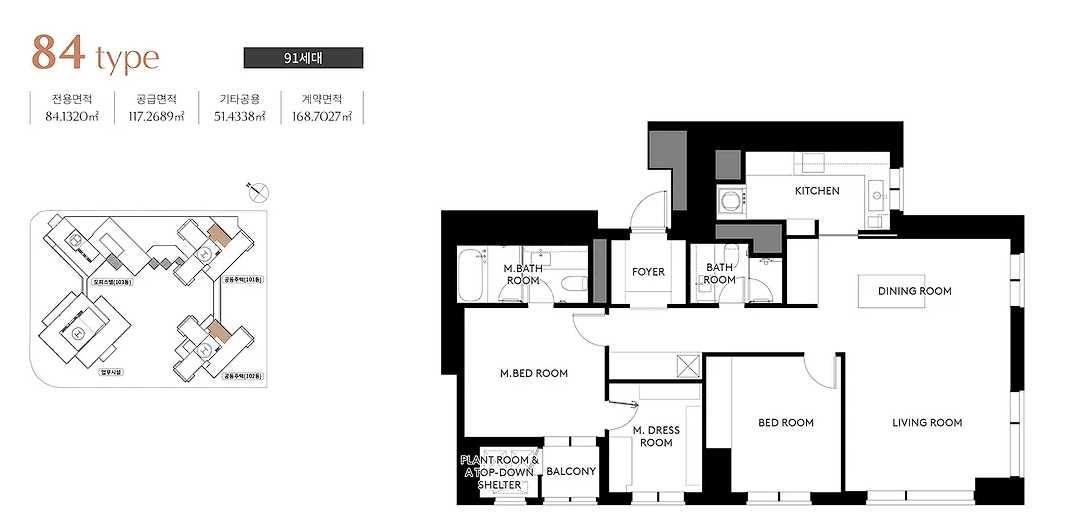
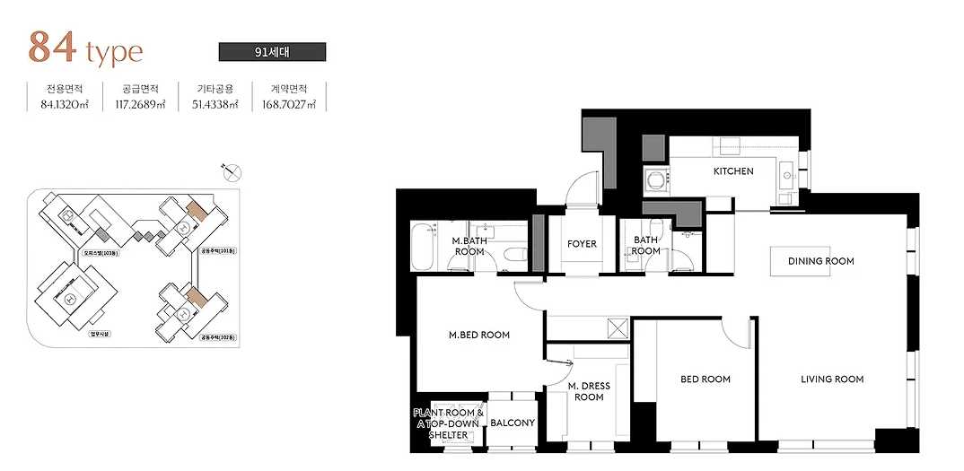
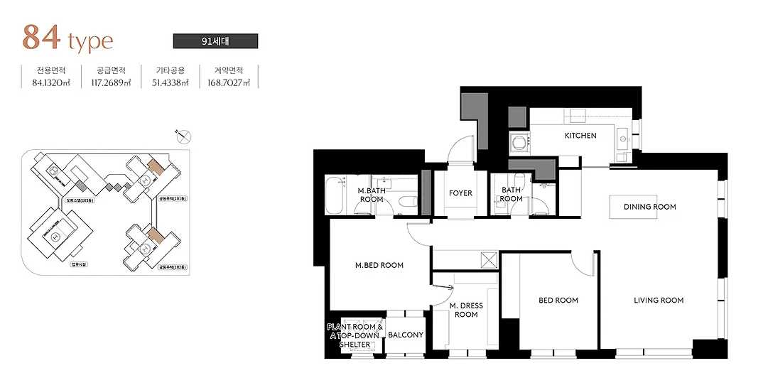
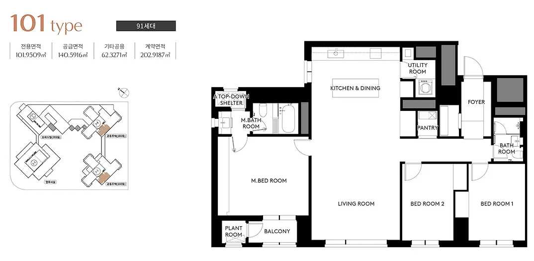
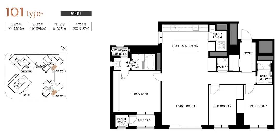
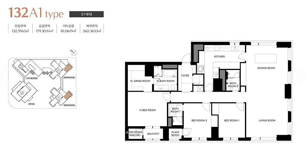
주택 평면도




모집공고 다운로드
서울시에서는 대중교통이 편리한 역세권 및 간선도로변에 청년, 신혼부부의 주거안정 및 주거난 해소를 위해 시세대비 저렴한 행복주택와 민감주택을 제공하고 있습니다.
임대주택을 잘 알아보시며, 적은 비용으로 주거안정과 더불어 행복한 삶을 영위할 수 있으니 알아보시기 바랍니다.
해당기관 공고페이지 바로가기
임대주택 주요 정보 알아보기
주택 관련 정보 더보기
- 주거급여 자격조건 신청방법 알아보기
- 임대주택 종류 총정리 (국민,공공,행복,장기,영구)
- 국민임대 주택 정보 총정리
- 영구임대 주택 정보 총정리
- 통합행복주택 주택 정보 총정리
- 행복주택 정보 총정리
- 장기전세 정보 총정리
- 행복주택 정보 총정리
- 행복주택 정보 총정리
청약점수 계산
입주자 모집공고
- LH청약플러스 홈페이지에서 확인
- GH주택청약센터 홈페이지에서 확인
- 청약 > 임대주택 > 공고문 선택
임대문의
- 전국 대표전화 1600-1004
- 운영시간 평일 09:00~18:00 (점심시간 12:00~13:00)
- 토,일 공휴일 휴무
인터넷 신청방법
- 공인 인증서 준비
- LH/GH 청약시스템 접속
- 인터넷 신청
- 신청 완료
청약 신청 제출 서류
예비입주자 당첨 명단 조회
예비입주자 당첨 명단 조회는 LH청약 홈페이지와 ARS(1661-7700)을 통해 당첨 발표일로부터 30일간 확인할 수 있습니다.
청약 > 청약결과 확인 > 당첨/낙찰 결과조회 에서 로그인 후 확인이 가능합니다.
당첨 사실을 확인하지 못하여 계약 체결을 못한 경우 책임은 신청자 본인에게 있습니다.
예비입주자 대기현황 조회
임대주택에 경우 바로 당첨 후 입주 하는 것이 아니라, 예비입주자 순번을 부여받고 순차적으로 공실이 나면 입주를 하게 됩니다.
당첨되기전에, 내가 청약한 주택에 입주 대기자수를 확인해보고, 내가 언제쯤 입주할지를 가늠해볼 수 있습니다.
예비입주자 대기현황(마이홈)에서 해당 단지를 검색하면, 입주 대기자수를 확인이 가능합니다.
반응형
'영등포구' 카테고리의 다른 글
| 영등포구 문래동롯데캐슬아파트 민간임대 모집공고 (51,52,53,55,59형) (0) | 2024.05.09 |
|---|---|
| 영등포구 신대림2차신동아파밀리에 장기전세 모집공고 및 평면도 (59형) (0) | 2024.05.09 |
| 영등포구 문래동모아미래도 장기전세 모집공고 및 평면도 (59,84형) (0) | 2024.05.09 |
| 영등포구 태승훼밀리 장기전세 모집공고 (53,77,81,84형) (0) | 2024.05.09 |
| 영등포구 신길역준타워 청년안심주택 모집공고 (16,19,31,32,34,42형) (0) | 2024.05.09 |
Blog is powered by
Tistory / Designed by
Tistory