티스토리 뷰
서울 서초구 서초포레스타7단지 장기전세 임대주택 모집공고, 공급, 임대료, 평면도, 위치등에 대해서 알아봅니다.
서초포레스타7단지는 인근에 편의점 마트, 병원, 공원, 카페 등 다양한 편의시설이 고루 갖춰진 지역에 위치하고 있습니다.
목차
서초포레스타7단지 장기전세

상세정보
- 주소 서울 서초구 청계산로11길 7-12
- 주택명 서초포레스타7단지
- 지하철역 신분당선 청계산입구역
- 규모 241
위치정보
공급정보

임대보증금 및 월 임대료는 입주자 모집공고일 기준이며, 보증금 최대 전환 시 변동될 수 있습니다.
장기전세아파트는 분양전환이 되지 않는 아파트로써, 입주민에게 주택을 분양하지 않고 첫 계약 후 2년마다 재계약을 하는 방식으로 최대 20년까지 거주하게 하는 주택입니다.
단지 배치도
동호 배치도
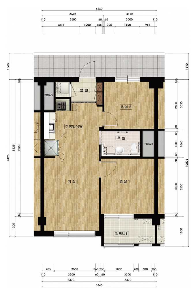
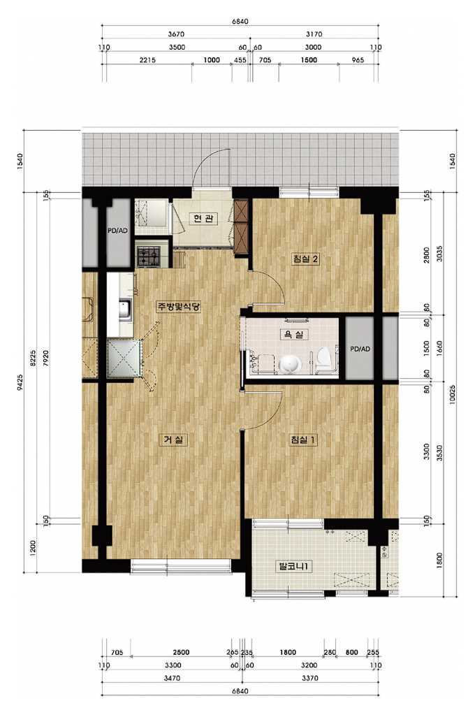
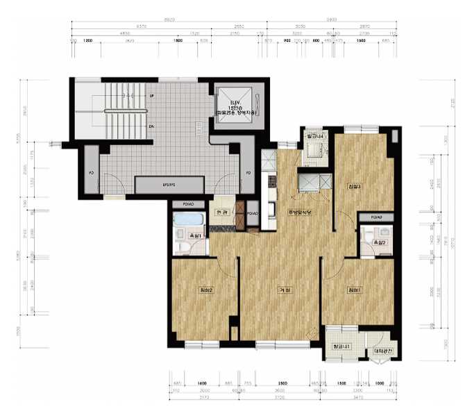
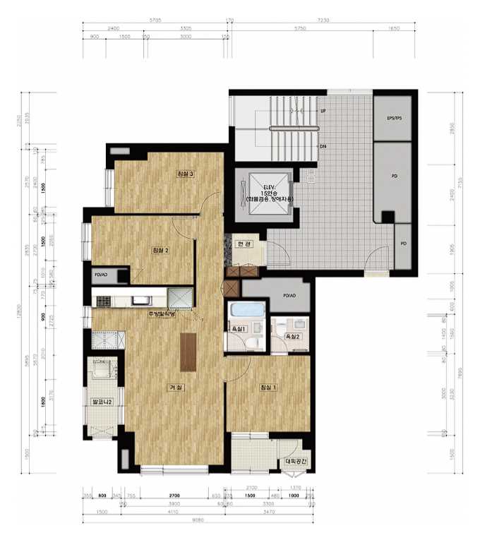
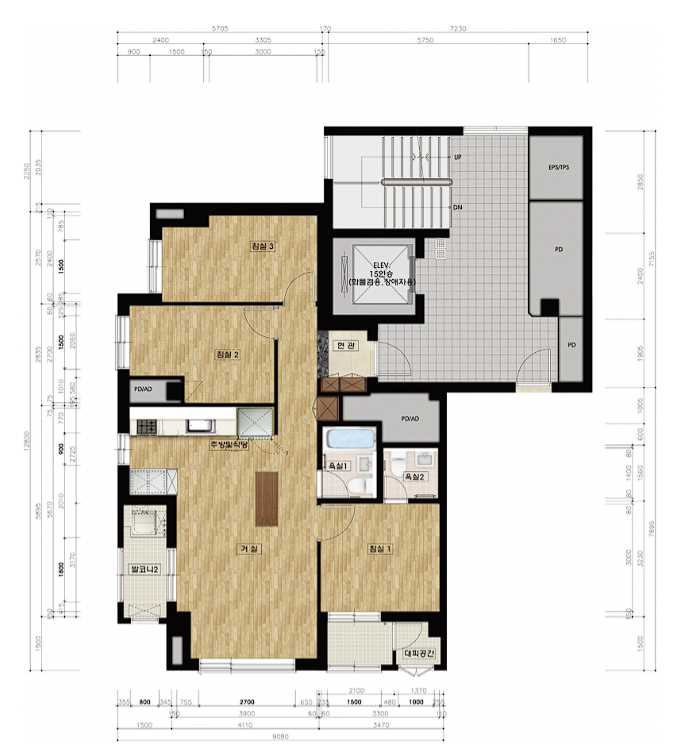
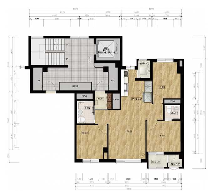
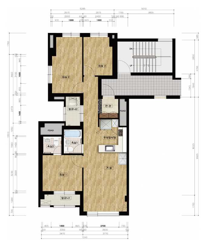
주택 평면도
49A

49A1

49A1S

49AS

59A

59A1

59B1

59AS

59H

59HS

84B1

84H

84B1S

모집공고 다운로드
서울시에서는 대중교통이 편리한 역세권 및 간선도로변에 청년, 신혼부부의 주거안정 및 주거난 해소를 위해 시세대비 저렴한 행복주택와 민감주택을 제공하고 있습니다.
임대주택을 잘 알아보시며, 적은 비용으로 주거안정과 더불어 행복한 삶을 영위할 수 있으니 알아보시기 바랍니다.
해당기관 공고페이지 바로가기
임대주택 주요 정보 알아보기
주택 관련 정보 더보기
- 주거급여 자격조건 신청방법 알아보기
- 임대주택 종류 총정리 (국민,공공,행복,장기,영구)
- 국민임대 주택 정보 총정리
- 영구임대 주택 정보 총정리
- 통합행복주택 주택 정보 총정리
- 행복주택 정보 총정리
- 장기전세 정보 총정리
- 행복주택 정보 총정리
- 행복주택 정보 총정리
청약점수 계산
임대문의
- 전국 대표전화 1600-1004
- 운영시간 평일 09:00~18:00 (점심시간 12:00~13:00)
- 토,일 공휴일 휴무
인터넷 신청방법
- 공인 인증서 준비
- LH/GH 청약시스템 접속
- 인터넷 신청
- 신청 완료
청약 신청 제출 서류
예비입주자 당첨 명단 조회
예비입주자 당첨 명단 조회는 LH청약 홈페이지와 ARS(1661-7700)을 통해 당첨 발표일로부터 30일간 확인할 수 있습니다.
청약 > 청약결과 확인 > 당첨/낙찰 결과조회 에서 로그인 후 확인이 가능합니다.
당첨 사실을 확인하지 못하여 계약 체결을 못한 경우 책임은 신청자 본인에게 있습니다.
예비입주자 대기현황 조회
임대주택에 경우 바로 당첨 후 입주 하는 것이 아니라, 예비입주자 순번을 부여받고 순차적으로 공실이 나면 입주를 하게 됩니다.
당첨되기전에, 내가 청약한 주택에 입주 대기자수를 확인해보고, 내가 언제쯤 입주할지를 가늠해볼 수 있습니다.
예비입주자 대기현황(마이홈)에서 해당 단지를 검색하면, 입주 대기자수를 확인이 가능합니다.
'서초구' 카테고리의 다른 글
| 서울 서초구 서초네이처힐3단지 장기전세 임대주택 모집공고 (0) | 2024.05.25 |
|---|---|
| 서울 서초구 서초네이처힐6단지 장기전세 임대주택 모집공고 (0) | 2024.05.25 |
| 서울 서초구 양재리본타워1단지 장기전세 임대주택 모집공고 (0) | 2024.05.25 |
| 서울 서초구 방배롯데캐슬아르떼 장기전세 임대주택 모집공고 (0) | 2024.05.25 |
| 서울 서초구 LH서초3단지 장기전세 임대주택 모집공고 (0) | 2024.05.25 |