티스토리 뷰
서울 강서구 마곡수명산파크6단지 국민임대 임대주택 모집공고, 공급, 임대료, 평면도, 위치등에 대해서 알아봅니다.
마곡수명산파크6단지는 편의점 마트, 병원, 대학교, 공원, 카페 등 다양한 편의시설이 고루 갖춰진 지역에 위치하고 있습니다.
목차
마곡수명산파크6단지

상세정보
- 주소 서울 강서구 수명로2길 63
- 주택명 마곡수명산파크6단지
- 지하철역 5호선 우장산역
- 규모 237 (총 399세대)
위치정보
공급정보

임대보증금 및 월 임대료는 입주자 모집공고일 기준이며, 보증금 최대 전환 시 변동될 수 있습니다.
국민임대아파트는 분양전환이 되지 않는 아파트로써, 입주민에게 주택을 분양하지 않고 첫 계약 후 2년마다 재계약을 하는 방식으로 최대 30년까지 거주하게 하는 주택입니다.
단지 배치도
동호 배치도
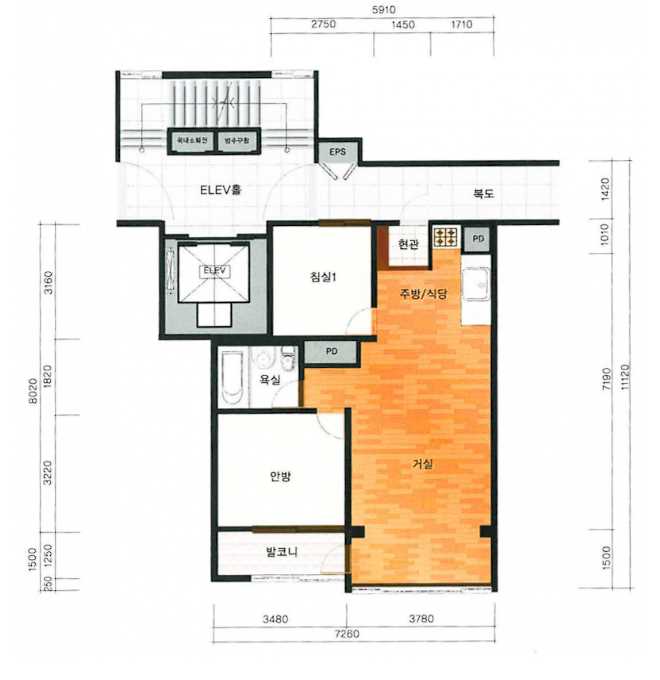
주택 평면도
49A

49B

49C

모집공고 다운로드
서울시에서는 대중교통이 편리한 역세권 및 간선도로변에 청년, 신혼부부의 주거안정 및 주거난 해소를 위해 시세대비 저렴한 국민임대와 민감주택을 제공하고 있습니다.
임대주택을 잘 알아보시며, 적은 비용으로 주거안정과 더불어 행복한 삶을 영위할 수 있으니 알아보시기 바랍니다.
해당기관 공고페이지 바로가기
임대주택 주요 정보 알아보기
주택 관련 정보 더보기
- 주거급여 자격조건 신청방법 알아보기
- 임대주택 종류 총정리 (국민,공공,행복,장기,영구)
- 국민임대 주택 정보 총정리
- 영구임대 주택 정보 총정리
- 통합국민임대 주택 정보 총정리
- 국민임대 정보 총정리
- 장기전세 정보 총정리
- 국민임대 정보 총정리
- 국민임대 정보 총정리
청약점수 계산
임대문의
- 전국 대표전화 1600-1004
- 운영시간 평일 09:00~18:00 (점심시간 12:00~13:00)
- 토,일 공휴일 휴무
인터넷 신청방법
- 공인 인증서 준비
- LH/GH 청약시스템 접속
- 인터넷 신청
- 신청 완료
청약 신청 제출 서류
예비입주자 당첨 명단 조회
예비입주자 당첨 명단 조회는 LH청약 홈페이지와 ARS(1661-7700)을 통해 당첨 발표일로부터 30일간 확인할 수 있습니다.
청약 > 청약결과 확인 > 당첨/낙찰 결과조회 에서 로그인 후 확인이 가능합니다.
당첨 사실을 확인하지 못하여 계약 체결을 못한 경우 책임은 신청자 본인에게 있습니다.
예비입주자 대기현황 조회
임대주택에 경우 바로 당첨 후 입주 하는 것이 아니라, 예비입주자 순번을 부여받고 순차적으로 공실이 나면 입주를 하게 됩니다.
당첨되기전에, 내가 청약한 주택에 입주 대기자수를 확인해보고, 내가 언제쯤 입주할지를 가늠해볼 수 있습니다.
예비입주자 대기현황(마이홈)에서 해당 단지를 검색하면, 입주 대기자수를 확인이 가능합니다.
'강서구' 카테고리의 다른 글
| 서울 강서구 등촌주공11단지 국민임대 임대주택 모집공고 (0) | 2024.06.01 |
|---|---|
| 서울 강서구 마곡수명산파크2단지 국민임대 임대주택 모집공고 (0) | 2024.06.01 |
| 서울 강서구 마곡엠밸리7단지 국민임대 임대주택 모집공고 (0) | 2024.06.01 |
| 서울 강서구 마곡수명산파크1단지 국민임대 임대주택 모집공고 (0) | 2024.06.01 |
| 서울 강서구 마곡수명산파크4단지 국민임대 임대주택 모집공고 (0) | 2024.06.01 |